For ikke at udsætte os selv og vores gæster for et logistisk helvede og halsbrækkende balanceakt op og ned ad trapperne fra det høje centralkøkken, når man vil spise i haven, har vi selvfølgelig lagt et køkken i havehøjde.
Også det er med plads til begejstring.
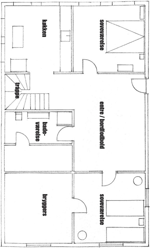
Husets kælder ligger i haveplan.
På nederste etage er der 2 dobbeltværelser.
Det ene, er med king size seng, og vender ud mod havet (øst) med direkte udgang til haven.
Det andet værelse ligger i den modsatte ende og har 2 enkelt elevations-senge.
Et badeværelse med toilet.
Et fællesrum med bordfodbold samt et ekstra køkken i have højde så man ikke sætter livet på spil hvis man vil spise i have,











KOFOED MORTENSEN – Villa i Årsdale

