Da vi første gang stod i det gamle køkken og kiggede ud over Østersøen, oplevedes det som en kæmpe færge,
der var på vej ud på oceanerne.
Vores indretning sker med maven.
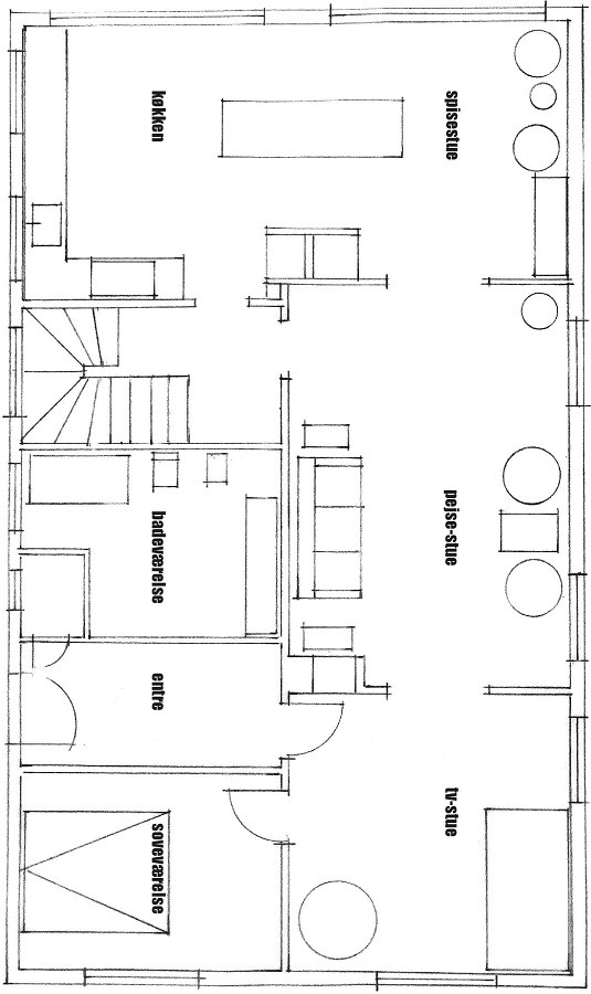
Stueetagen – Indeholder entre, et dobbeltværelse med kingsize-seng, som vender mod vest.
Der er 2 opholdsstuer en suite – den ene med brændeovn.
Et badeværelse (badekar) og toilet. OG ikke mindst – centralkøkkenet.
Køkkenet er ét rum, hvor man skal give den gas – altså rent madmæssigt. Det har en central placering, hvor man altid vil styre henimod i forhold til hele huset – og udover oceanerne – nemlig i stueetagen.
I den ene ende laves der mad, i den anden kan man hygge sig med en bog med duften fra madlavningen og i midten er spisebordet.
Det kalder vi Centralkøkkenet.










